Connectez-vous/S’inscrire
Votre e-mail a été envoyé.
Certaines informations ont été traduites automatiquement.
INFORMATIONS PRINCIPALES SUR L'INVESTISSEMENT
- PRIX RÉDUIT !
- Entouré de nombreuses entreprises commerciales et d'un solide soutien résidentiel
- Surrounded by many commercial businesses and strong residential support
- Emplacement idéal pour un usage médical, professionnel ou de bureau
- Panneau commémoratif sur Custer Drive
RÉSUMÉ ANALYTIQUE
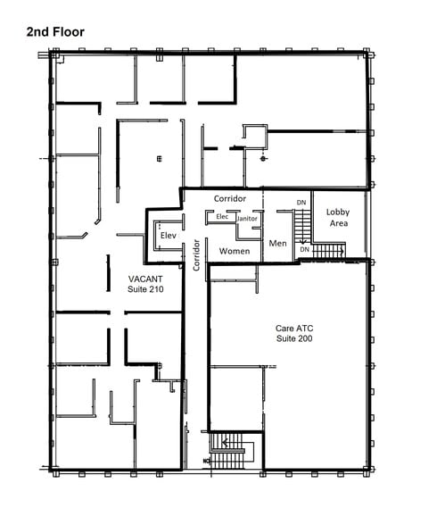
Parfait pour un propriétaire occupant un immeuble de bureaux de deux étages bien construit de plus de 14 850 pieds carrés avec ascenseur situé juste à côté de Pimlico Parkway et du boulevard Man O' War. Le bâtiment dispose d'un système de gicleurs et d'un système de sécurité, d'un toit, d'un système CVC à pompe à chaleur à haut rendement avec zones séparées, d'un panneau commémoratif sur Custer Drive et d'une place pour 212 pieds carrés ; 70 places de stationnement au total.
Emplacement idéal pour un usage médical, professionnel ou de bureau, entouré de nombreuses entreprises commerciales et d'un solide soutien résidentiel avec un accès facile au boulevard Man O' War, à New Circle Road, à l'I-75 et à l'I-64, zone P-1, bureau professionnel. Le registre des loyers et une analyse financière détaillée sont disponibles lors de la signature de l'accord de confidentialité.
Emplacement idéal pour un usage médical, professionnel ou de bureau, entouré de nombreuses entreprises commerciales et d'un solide soutien résidentiel avec un accès facile au boulevard Man O' War, à New Circle Road, à l'I-75 et à l'I-64, zone P-1, bureau professionnel. Le registre des loyers et une analyse financière détaillée sont disponibles lors de la signature de l'accord de confidentialité.
TAXES ET FRAIS D’EXPLOITATION (RÉEL - 2024) Cliquez ici pour accéder à |
ANNUEL | ANNUEL PAR m² |
|---|---|---|
| Taxes |
-
|
-
|
| Frais d’exploitation |
-
|
-
|
| Total des frais |
$99,999
|
$9.99
|
TAXES ET FRAIS D’EXPLOITATION (RÉEL - 2024) Cliquez ici pour accéder à
| Taxes | |
|---|---|
| Annuel | - |
| Annuel par m² | - |
| Frais d’exploitation | |
|---|---|
| Annuel | - |
| Annuel par m² | - |
| Total des frais | |
|---|---|
| Annuel | $99,999 |
| Annuel par m² | $9.99 |
INFORMATIONS SUR L’IMMEUBLE
Type de vente
Propriétaire occupant
Type de bien
Bureau
Sous-type de bien
Surface de l’immeuble
1 380 m²
Classe d’immeuble
C
Année de construction/rénovation
1980/2017
Prix
1 362 411 €
Prix par m²
987,53 €
Occupation
Multi
Hauteur du bâtiment
2 étages
Surface type par étage
690 m²
Dalle à dalle
3,35 m
Coefficient d’occupation des sols de l’immeuble
0,30
Surface du lot
0,45 ha
Zonage
P-1 - Bureau professionnel et autres utilisations diverses
Stationnement
70 places (50,74 places par 1 000 m² loué)
CARACTÉRISTIQUES
- Accès 24 h/24
- Ligne d’autobus
- Signalisation
- Accessible fauteuils roulants
- Atrium
- Chauffage central
- Toilettes dans les parties communes
- Lumière naturelle
- Bureaux cloisonnés
- Plafond suspendu
- Panneau monumental
- Climatisation
1 1
TAXES FONCIÈRES
| Numéro de parcelle | 11887938 | Évaluation des aménagements | 0 € (2025) |
| Évaluation du terrain | 0 € (2025) | Évaluation totale | 1 189 128 € (2025) |
TAXES FONCIÈRES
Numéro de parcelle
11887938
Évaluation du terrain
0 € (2025)
Évaluation des aménagements
0 € (2025)
Évaluation totale
1 189 128 € (2025)
1 sur 15
VIDÉOS
VISITE EXTÉRIEURE 3D MATTERPORT
VISITE 3D
PHOTOS
STREET VIEW
RUE
CARTE
1 sur 1
Présenté par
3138 Custer Dr
Vous êtes déjà membre ? Connectez-vous
Hum, une erreur s’est produite lors de l’envoi de votre message. Veuillez réessayer.
Merci ! Votre message a été envoyé.



