Votre e-mail a été envoyé.
Certaines informations ont été traduites automatiquement.
INFORMATIONS PRINCIPALES SUR LA SOUS-LOCATION
- Modern medical/professional layout
- Move-in ready build-out with exam rooms & offices
TOUS LES ESPACES DISPONIBLES(2)
Afficher les loyers en
- ESPACE
- SURFACE
- DURÉE
- LOYER
- TYPE DE BIEN
- ÉTAT
- DISPONIBLE
Rare opportunity to sublease Class A medical office space on the 20th floor of Town Center One in Miami’s Dadeland/Kendall business district. The suite features exclusive exam rooms, private offices, and built-in cabinetry, along with a shared waiting area, kitchen, and corridors connected to an established OBGYN practice. Enjoy expansive skyline views, abundant natural light, and a modern move-in ready build-out.
- Espace en sous-location disponible auprès de l’occupant actuel
- Entièrement aménagé comme Cabinet médical standard
- Espace en excellent état
- 2,213 RSF w/ skyline views & natural light
- Le loyer n’inclut pas certains frais immobiliers.
- Convient pour 6 à 18 personnes
- Modern medical/professional layout
- Move-in ready build-out with exam rooms & offices
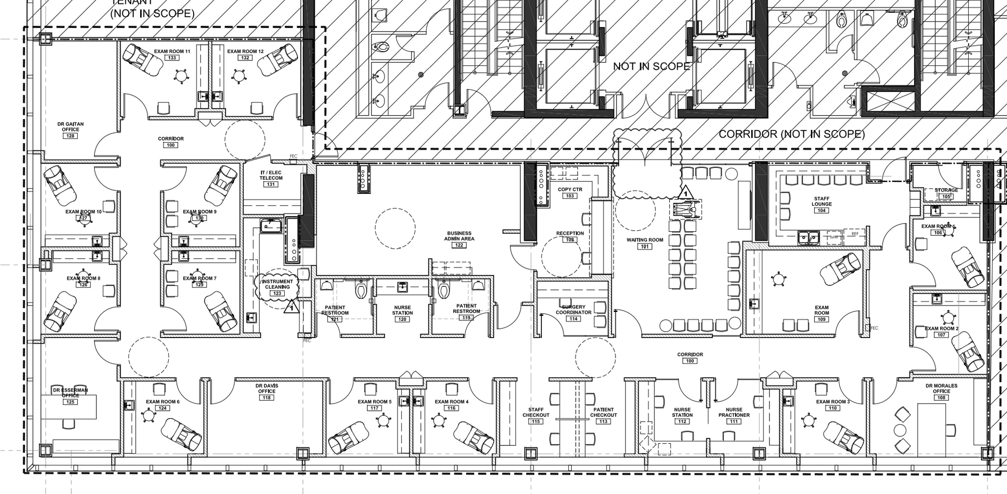
The suite offers a highly efficient, patient-centric layout featuring numerous private exam rooms, physician offices, nurse stations, and procedure-ready rooms, allowing a new occupant to step in with minimal modifications. A centrally positioned reception and expansive waiting area create a welcoming first impression, while the thoughtfully designed internal layout promotes seamless patient flow and operational efficiency. Complementing the clinical areas are well-appointed support spaces, including business administration offices, patient and staff restrooms, a staff lounge, and dedicated patient check-in and check-out stations. Designed to support a multi-provider environment, the space is well-suited for primary care, specialty practices, outpatient services, or a consolidated medical group.
- Espace en sous-location disponible auprès de l’occupant actuel
- Turnkey Medical Build-Out
- Premier Class A Location
- Le loyer n’inclut pas certains frais immobiliers.
- Efficient Multi-Provider Layout
| Espace | Surface | Durée | Loyer | Type de bien | État | Disponible |
| 20e étage | 206 m² | Juin 2028 | 439,97 € /m²/an 36,66 € /m²/mois 90 456 € /an 7 538 € /mois | Bureaux/Médical | Construction achevée | Maintenant |
| 20e étage | 553 m² | Juin 2028 | 439,97 € /m²/an 36,66 € /m²/mois 243 206 € /an 20 267 € /mois | Médical | - | 01/01/2026 |
20e étage
| Surface |
| 206 m² |
| Durée |
| Juin 2028 |
| Loyer |
| 439,97 € /m²/an 36,66 € /m²/mois 90 456 € /an 7 538 € /mois |
| Type de bien |
| Bureaux/Médical |
| État |
| Construction achevée |
| Disponible |
| Maintenant |
20e étage
| Surface |
| 553 m² |
| Durée |
| Juin 2028 |
| Loyer |
| 439,97 € /m²/an 36,66 € /m²/mois 243 206 € /an 20 267 € /mois |
| Type de bien |
| Médical |
| État |
| - |
| Disponible |
| 01/01/2026 |
20e étage
| Surface | 206 m² |
| Durée | Juin 2028 |
| Loyer | 439,97 € /m²/an |
| Type de bien | Bureaux/Médical |
| État | Construction achevée |
| Disponible | Maintenant |
Rare opportunity to sublease Class A medical office space on the 20th floor of Town Center One in Miami’s Dadeland/Kendall business district. The suite features exclusive exam rooms, private offices, and built-in cabinetry, along with a shared waiting area, kitchen, and corridors connected to an established OBGYN practice. Enjoy expansive skyline views, abundant natural light, and a modern move-in ready build-out.
- Espace en sous-location disponible auprès de l’occupant actuel
- Le loyer n’inclut pas certains frais immobiliers.
- Entièrement aménagé comme Cabinet médical standard
- Convient pour 6 à 18 personnes
- Espace en excellent état
- Modern medical/professional layout
- 2,213 RSF w/ skyline views & natural light
- Move-in ready build-out with exam rooms & offices
20e étage
| Surface | 553 m² |
| Durée | Juin 2028 |
| Loyer | 439,97 € /m²/an |
| Type de bien | Médical |
| État | - |
| Disponible | 01/01/2026 |
The suite offers a highly efficient, patient-centric layout featuring numerous private exam rooms, physician offices, nurse stations, and procedure-ready rooms, allowing a new occupant to step in with minimal modifications. A centrally positioned reception and expansive waiting area create a welcoming first impression, while the thoughtfully designed internal layout promotes seamless patient flow and operational efficiency. Complementing the clinical areas are well-appointed support spaces, including business administration offices, patient and staff restrooms, a staff lounge, and dedicated patient check-in and check-out stations. Designed to support a multi-provider environment, the space is well-suited for primary care, specialty practices, outpatient services, or a consolidated medical group.
- Espace en sous-location disponible auprès de l’occupant actuel
- Le loyer n’inclut pas certains frais immobiliers.
- Turnkey Medical Build-Out
- Efficient Multi-Provider Layout
- Premier Class A Location
APERÇU DU BIEN
Now available for sublease is a fully built-out, turnkey medical office suite at Town Center One, offering an exceptional opportunity for medical groups, specialty practices, or healthcare operators seeking a premier Class A location with existing medical infrastructure. Designed to accommodate a multi-provider practice, the suite is well-suited for primary care, specialty medicine, outpatient services, or a consolidated group practice. Situated within Town Center One, a premier Class A office tower in the Dadeland/Kendall submarket, the property offers excellent accessibility, professional management, on-site parking, and proximity to major roadways, public transit, retail, and dining amenities. Subleasing the space provides a rare opportunity to step into a fully improved medical environment without the cost, time, or disruption of a new build-out, making it ideal for practices seeking speed-to-market in a highly desirable medical and professional corridor.
- Accès 24 h/24
- Accès contrôlé
- Concierge
- Service de restauration
- Property Manager sur place
- Restaurant
- Réception
- Climatisation
INFORMATIONS SUR L’IMMEUBLE
Présenté par
Town Center One | 8950 SW 74th Ct
Hum, une erreur s’est produite lors de l’envoi de votre message. Veuillez réessayer.
Merci ! Votre message a été envoyé.








